Description
Secteur Est de TOULOUSE, à DREMIL LAFAGE, LOCO² vous propose à l'acquisition un local d'activité neuf, à construire, de 500 m² dont 100 m² de bureaux entièrement indépendant. Localisation stratégique :Proximité immédiate d'un centre commercial (Super U, McDonald's, Picard, Basic Fit?)9 min de Balma ?15 min de Toulouse - 5 min de Quint-Fonsegrives5 km de la Rocade Est Accès direct route de Castres Zone d'activité de premier plan.
Surfaces disponibles| Type | Commentaire | Surface |
| Entrepôt | 250 m² | |
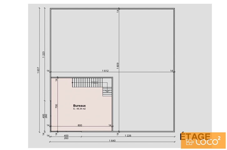
| Bureaux | 50 m² | |
| L'ensemble | 300 m² | |
| Entrepôt | 250 m² | |
| Bureaux | 50 m² | |
| L'ensemble | 300 m² |
Diagnostic énergétique

























