Description
Secteur Est de TOULOUSE à DREMIL LAFAGE, LOCO² vous propose à l'acquisition un local d'activité neuf à construire de 250 m² dont 50 m² de bureaux entièrement indépendant.Possibilité d'acquérir une surface identique attenante pour doubler la superficie.Localisation stratégique :Proximité immédiate d'un centre commercial (Super U, McDonald's, Picard, Basic Fit)9 min de Balma -15 min de Toulouse - 5 min de Quint-Fonsegrives5 km de la Rocade Est Accès direct route de Castres Zone d'activité de premier plan.
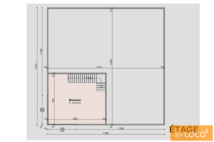
Surfaces disponibles| Type | Commentaire | Surface |
| Entrepôt | 250 m² | |
| Bureaux | 50 m² | |
| L'ensemble | 300 m² | |
| Entrepôt | 250 m² | |
| Bureaux | 50 m² | |
| L'ensemble | 300 m² |
Diagnostic énergétique



















