Description
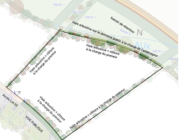
Au Sud Est de Toulouse, secteur Labège - Escalquens, LOCO² vous propose à la vente un terrain situé dans la dynamique zone artisanale de Vic à Castanet Tolosan, au coeur du Sicoval.Programme les Haies de Vic ;possibilité d'acquérir en plus un PC déjà obtenu sur ce site (nous consulter).Les voiries, neuves, ont été livrées l'an passé sur cette extension de zone.Environnement de travail qualitatif : Canal du Midi, Décathlon, padel, zone de la Masquère, etc.Accès rapide au périphérique / rocade et Autoroute A61;
Diagnostic énergétique







